Bole Konutları

2017, Addis Ababa, Etiyopya – Konut, otopark, ofisler ve kamusal teras projesi.
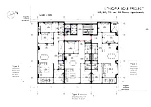
Etiyopya başkenti Addis Ababa’nın merkezi konumunda bulunan 500 m² köşe arazisi üzerinde tasarlanmış yapımına devam edilen konut – ticari yapı projesi. Ofisler bir oda bir salon olarak konut-ticari düşünülmüş her katta 6 farklı plan yapısında ofis bulunmaktadır.
Projenin ilk dört katı ticari amaçlı ofis kullanımı olacak şekilde bölümlendirilmiş, son dört katı da her katta üçer daire olacak şekilde konut olarak tasarlanmıştır. Daireler 2 ve 3 odalı olarak farklı tiplerde yapılmıştır. Giriş ve bodrum kat otopark, çatı katı ise kamuya açık restoran olarak projelendirilmiştir.
Bole Mahallesi, Addis Ababa, Etiyopya
Arsa: 500 m², İnsaat: 4.667 m²
www.metropolitanaddis.com
EKİP
Proje Ekibi: Meydan Mimarlık











