Demirciköy Villa Projesi

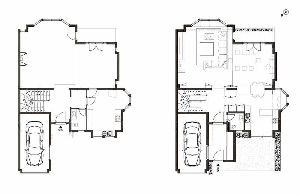
2021, Demirciköy, Sarıyer, İstanbul – Villanın zemin katı tamamen yeniden tasarlandı. Gereksiz duvarlar ve kapılar kaldırılarak, giriş, mutfak, yemek odası ve oturma odasının mekansal ve görsel olarak birbirine bağlandığı benzersiz bir açık alan oluşturuldu. Mobilyalardaki modern çizgiler ve kaliteli malzemeler, ailenin günlük yaşamı için zengin ve hayat dolu mekanlar yaratıyor.
Demirciköy, Sariyer (İstanbul) 130 m²
EKİP
Proje Ekibi: Meydan Mimarlık Tasarım (Doruk Karagöz, Jose Manuel Garcia Torres, Sude Soydaş, Hasan Korkut Gökçe, Teoman Güney)
Fotoğraf: Meydan Mimarlık
Mobilya: Konak Mobilya / İsmet Konak













