Habitat Coffee & Donut

2020, Eskişehir Odunpazarı’nda, Hasan Polatkan Bulvarı üzerinde bulunan dükkanın waffle – donut kafe olarak hizmet verebilmesi için tasarımının yapılması ve uygulama projelerinin hazırlanması .
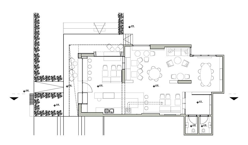
Tasarımda kafenin bar bölümü ön cephede düşünülerek vitrin oluşturulmuş ve take-away servisi için de olanak sağlanmıştır. Ön cephe cam doğraması içeri çekilerek oturma nişi burada tasarlanmıştır.
Teras, giriş ve arka bölümlerde farklı oturma seçenekleri dinlenme, çalışma, yeme içme gibi eylemlere yönelik olarak oluşturmaktadır.
Cephede, sabit ve hareketli mobilyalarda genel olarak vernik yüzey koruyuculu kayın masifpan malzemesi tercih edilmiştir.
100 m²
Odunpazarı, Eskişehir
EKİP
Proje Ekibi: Meydan Mimarlık (Doruk Karagöz, Jose Manuel García Torres, Fatma Chatzigkene)
Fotoğraflar: Meydan Mimarlık
Uygulamacı: Berfin Dekorasyon
Marangoz: Yaprak Mobilya
Doğrama: Köroğlu Cam










