Kasımpaşa Stüdyo

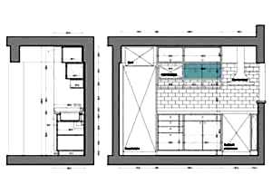
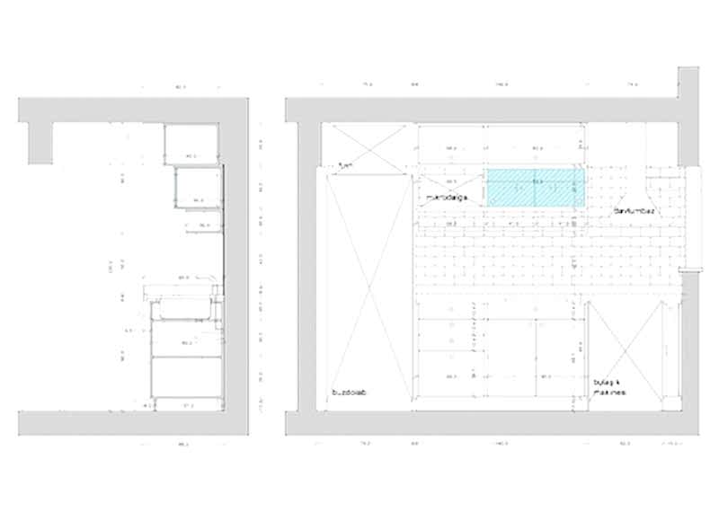
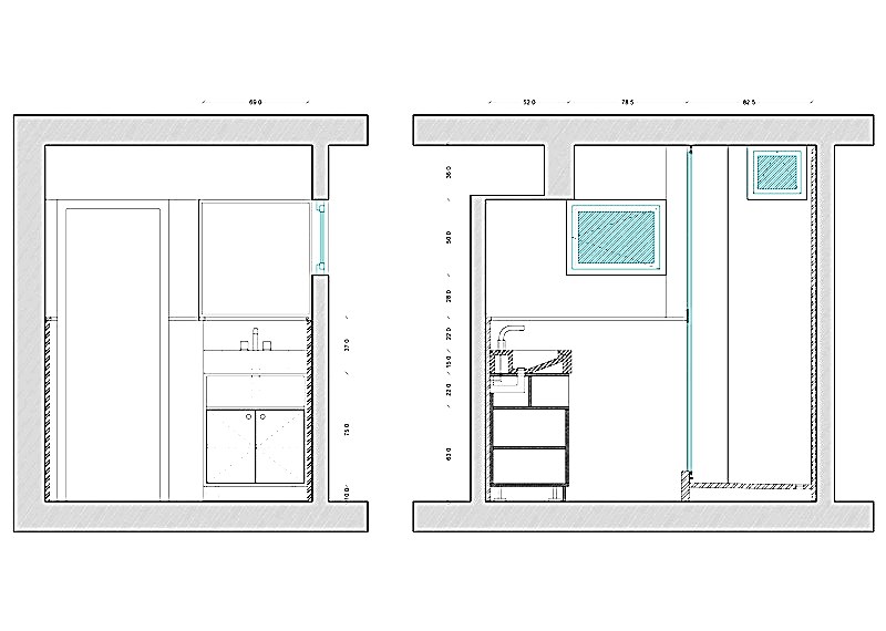
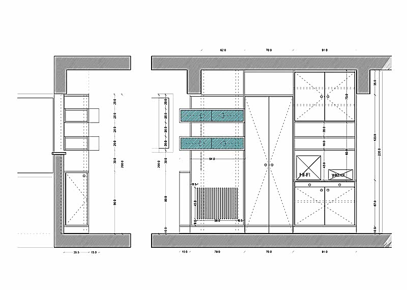
2012, İstanbul – Kasımpaşa bölgesinde bulunan Haliç ve Galata Kulesi manzaralı dairenin konsepti açık mutfak, depo alanı ve yaşam alanı içeren bir stüdyo daire olarak geliştirilmiştir.
Entegre mobilyalar, ahşap zemin döşeme ve çizgili Marmara mermeri ile donatılan mekân, kullanıcısının estetik ve fonksiyonel gereksinmelerini karşılamaktadır.
Kasımpaşa, Beyoğlu (İstanbul) 45 m²
İç Mimarlık Projesi
EKİP
Proje Ekibi: Meydan Mimarlık
Aydınlatma: Harm Burfeind
Fotoğraflar: Emre Dalak, Meydan Mimarlık
Ahşap Zemin ve Mobilya İşleri: Konak Mobilya / İsmet Konak
Mermer İşleri: Kurtuluş Mermer / Engin Kurtuluş
Mermer Tedarikçisi: Onset Mermer ve Doğaltaş / Erhan Bilkay
Fırın Boya İşleri: Tekdemir Elektrostatik Boya
Demir İşleri: Davut Doğrama
Su Tesisatı İşleri: Ümit Yılmaz
Kombi ve Doğalgaz İşleri: Özpınar Doğalgaz / İzzet Öğütçü, mühendis: Turan Sümer
Elektrik Tesisat İşleri: Görgülü Yapı ve Elektrik / Erkan Şen, Ahmet Karanfil
Cam (duşakabin) İşleri: Engin Cam / Rıza Engin
PVC Doğrama İşleri: Dinçpen
Genel Şantiye Tadilatı ve Boya İşleri: Adem Şenel ve Ekibi
































