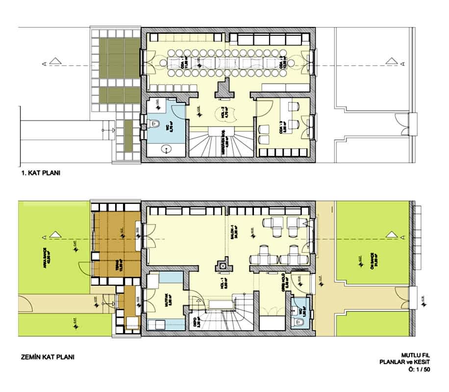
Mutlu Fil Çocuk Kitapevi

2015, Koşuyolu (Kadıköy) İstanbul – Kafe / Kitapevi.
İstanbul Koşuyolu’nda müstakil bir binada, çocuklar için kitap evi, organizasyon, atölyeler, oyun alanları ve yetişkinler için kafe projesi.
Binanın sağır cephesinde her iki katta da uygulanmış kutular; kitap sergileme, oyuncak dolabı, oturma üniteleri, aydınlatma ve etkinliklerde kullanılan çeşitli form ve renklerdeki pufların depolanmasına olanak sağlıyor.
Kutular bina dışına çıktığında teras üzerinde kış bahçesini oluşturuyor.
Kadıköy, İstanbul
Alan: 210 m²
www.mutlufil.com.tr
EKİP
Tasarım: Doruk Karagöz, Jose Manuel García Torres
Uygulama: Doruk Karagöz, Jose Manuel García Torres
Şantiye Kalfası: Orhan Karaca
İşveren: Mutlu Fil Yayınevi




















