Sen Piyer Apartmanı No7

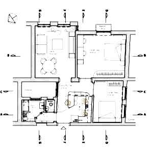
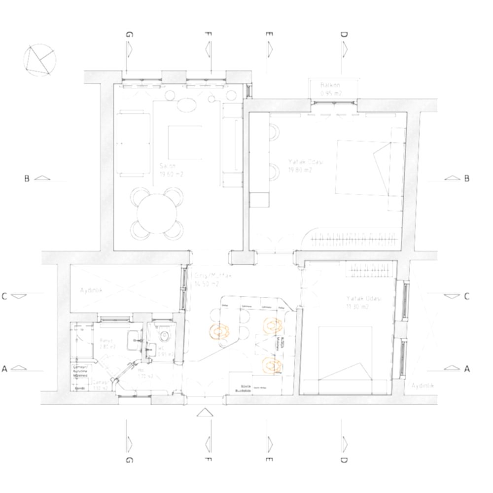
2024, Galata, Beyoğlu, İstanbul – Bu tarihi daire, modern yaşamın ihtiyaçlarına uyarlanacak şekilde restore edilmiştir. Dairenin büyük girişi, tüm odalara hizmet veren yeni bir mutfak-bara dönüştürülmüştür. Eski küçük mutfak yeni bir tuvalet ve çamaşır makinesi odasına dönüştürülmüştür. Orijinal ahşap işleri (zeminler, kapılar ve pencereler) restore edilmiş ve eski duvarlar zımparalanarak dairenin orijinal rengine büründürülmüştür.
Galata, Beyoğlu (İstanbul) 75 m²
EKİP
Proje Ekibi: Meydan Mimarlık Tasarım (Doruk Karagöz, Jose Manuel Garcia Torres, Batuhan Bilir, Teoman Güney)
Fotoğraf: Meydan Mimarlık
Müşteri: Domenikan Rahipleri













