Sofia & Aldo Evi

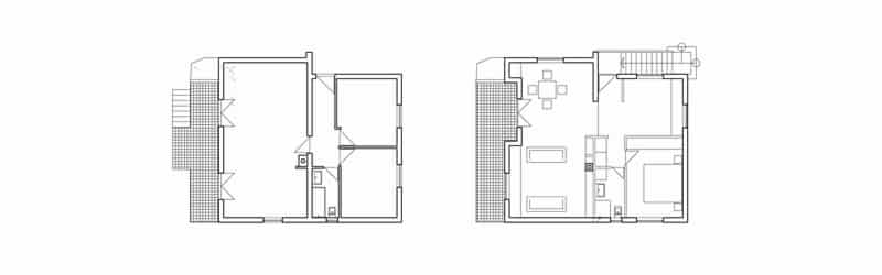
2008, Hırvatistan – Hali hazırdaki tek katlı ve bahçeli ev, sahiplerinin sonradan oluşan ihtiyacı yönünde bir kat daha eklenerek ve katı yerel yönetmeliklere de uymak kaydıyla yeni bir kata ve çatıya kavuştu.
Kullanıcı istek ve ihtiyaçları, yerleşkenin genel karakter/dokusu, komşu binalar ve doğayla etkileşim, proje sürecinde üzerinde durulan kavramlar oldu.
Stari Grad, Hvar (Hırvatistan) 96 m²
Müşteri: Aldo Čavić




















