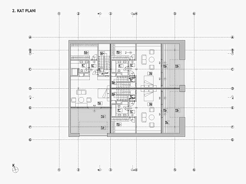
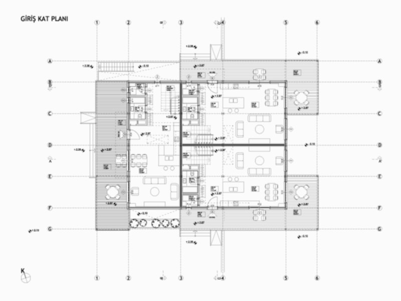
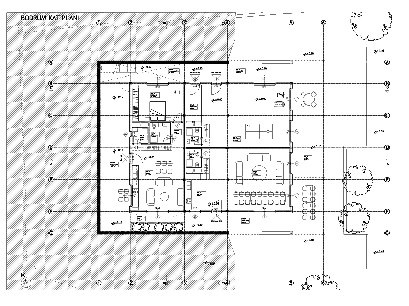
Tepeören Villası

2016, İstanbul – Formula 1 pisti karşısında çamlıklar arasında geniş manzaralı, Okan Üniversitesi Orhanlı Kampüsü yanında bağ ve yazlık evi. Üç kardeş için üç bağımsız girişe sahip villa.
3000 m² arsa üzerinde konumlanmış bina için bağımsız konut mahallerinin yanı sıra görevli dairesi, sosyal ve spor alanları yapı içinde barındıran geleneksel çözümler çağdaş malzeme ve tekniklerle yorumlanmış, buna göre tasarlanıp uygulanmıştır. Yapı betonarme temel üzerinde çelik konstrüksiyon taşıyıcı ile taşıtılmaktadır.
Dış mekanda yine ortak kullanımlı yüzme havuzu, kamelyalar, doğal su kuyuları, açık basketbol sahası, açık otopark, çocuk oyun alanları ve yeşil alanların arasında araziyi çevreleyen koşu – bisiklet patikası bulunmaktadır. Projenin tamamında yer alan tüm mobilyalar, yapı elemanları, peyzaj elemanları belirli konsept çerçevesinde tasarlanmış ve imalat bire bir tüm detayları ile çözülmüştür.
Tuzla, İstanbul
Arsa: 3000 m², inşaat 900 m²
EKİP
Proje ekibi: Doruk Karagöz, Jose Manuel García Torres, ABRA Design Studio (Cemal Çobanoğlu ve Başak Bakkaloğlu)
Topografya: Adil Baş
Demir İmalatı: Baboş Karadağ
Kaba İnşaat: Yılmaz İnşaat
Elektrik ve Mekanik: YEO
Müşteri: Yıldız Ailesi























