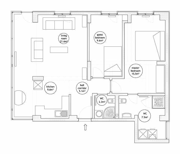
Acıbadem Bahçe Katı

2013, İstanbul – Giriş katı olması sebebiyle doğal ışık kullanımı nispeten az olan dairenin standart kooperatif plan kurgusundan arındırılması ve gerçek kullanıcılarının istek ve ihtiyacına göre yeniden planlanması projeye yaklaşımımızın çekirdeğini oluşturmaktaydı.
Bu hedefle varolan ve taşıyıcı olmayan birçok duvar yıkılıp yerine, odaları daha kullanışlı, ışık kullanımı daha etkin ve metrekareleri daha tutarlı hale getiren bölücü duvarlar inşa edildi.
Yeni duvarlar inşa edilirken bu duvarların tavana kadar gitmesine izin verilmeyip, duvar bitiş hizası ve tavan boşluğu arasında kalan yerlerin çok amaçlı gömme dolap olarak değerlendirilmesi daireye hem artı bir özellik hem de farklı bir karakter kattı.
Ayrıca giriş, açık mutfak ve tüm ıslak mekanların zeminlerinde kullanılan renkli çini taşı da evin öne çıkan bir diğer karakteri. Bir bahçe katı olması sebebiyle daire içinin bahçe ile ilişkisi yoğunlaştırıldı, mesela mutfak tamamen duvarsız bir hale dönüştürülerek hem yaşam alanı, hem de bahçe manzarası ile iletişimde tutuldu.
Acıbadem (İstanbul) 84 m²
İç Mekan Projesi
EKİP
Proje Ekibi: Meydan Mimarlık
Fotoğraflar: Meydan Mimarlık
Çini Zemin Döeşeme İşleri: Bahri Demir
Çini Taşı Tedarikçisi: Karosiman
Lake Kapı Üreticisi: İbrahim Sert
Elektrik İşleri: Görgülü Yapı ve Elektrik / Erkan Şen
Su Tesisatı ve Kombi İşleri: Ümit Yılmaz
Pvc Doğrama İşleri: Yenisey Pimapen
Genel Şantiye Tadilatı, Fayans ve Boya İşleri: Seyid Altun ve ekibi
































