Ryan Babel Penthouse

2013, İstanbul – İş dünyası merkezi Maslak’ta Mashattan Residence Penthouse’a kısa süreli bir yerleşim kurmak isteyen kullanıcı ihtiyaçları doğrultusunda mekan kurgusu oluşturuldu. Şehrin hızı ve mekanın geçiciliği gibi dış etmenler, kullanıcının ihtiyaç ve istekleri ile harmanlanınca ortaya çıkan tasarım konsepti tekrarlanan modüllerden türetilmiş minimal çizgide mobilyalar tasarlandı.
Altyapı işlemlerine ihtiyaç duymayan daire yapısı için koltuklar, mobilyalar, perdeler ve halı gibi bitirme ögeleri üretilip, tedarik edilerek, kullanıcıya optimum sürede maksimum verimle yaşam alanı sunuldu.
Mobilyalar tekrar eden modüllerden kurgulandığı için kutular olarak üretildi, hangi ürüne dönüştürülecekse ona göre montajı yapıldı. Beyaz metal kaide üzerine standardize edilmiş ölçüler ve tekrarlayan katlarından gri ve parlak ahşaplar ile tv ünitesi, dresuvar, orta sehpa, misafir gardrobu, komodin, yemek masası, ofis masası, ayakkabılık, çocuk oyuncak kutuları üretildi. Beyaz ve gri parlak renk tercihi mekan karakterinin tamamlayıcısı konumunda olup, bunlar ince, narin ve mobilyaya uyumlu metal kulplar ile tamamlandı. Amaçlanan modern, şık ve minimal atmosfer bu şekilde oluşturuldu.
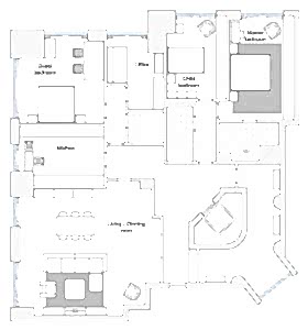
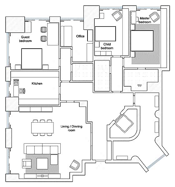
Mashattan, Maslak (İstanbul) 247 m²
Mobilya Tasarım Projesi
EKİP
Proje Ekibi: Meydan Mimarlık
Fotoğraflar: Meydan Mimarlık
Ahşap İşleri: Konak Mobilya
Metal İşleri: Davut Doğrama
Elektrik İşleri: Erciyes Elektrik
Halı Tedarikçisi: Türker Halı
Perde Üreticisi: Başak Perde
Yatak Üreticisi: Niron Yatak / www.nironyatak.com
Kanepe Üretim ve Tedarikçisi: NDesign / www.ndesign.com.tr
Koltuk Üreticisi: İlyas Yaman
Sandalye Üreticisi: Özmetal Sandalye / www.ozmetalsandalye.com























