Yeo Ofisi

2013, İstanbul – İç mekân, cephe ve peyzaj projeleri.
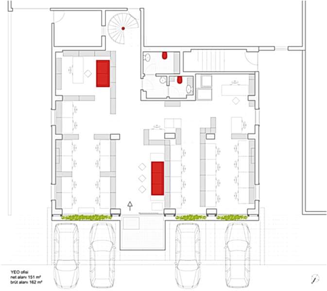
Kurumsal kimlik, ihtiyaç ve değerlere uygun, bu unsurları daha çok öne çıkaracak, yaratıcı, esnek, modüler ve kullanışlı çalışma ortamı yaratmak üzere iç ve dış mekân projelendirmesi yapıldı.
Tasarımın temel hareket noktası; hızla gelişen bir şirket profili çizen Yılmaz Elektrik Otomasyon’un (YEO) çalışan sayısı, departman vb. değişikliklerini öngörebilecek, esnek ve modüler bir ofis tasarımıydı. Bu girdiler ışığında ofis içerisinde modüler ve hareketli , dolayısıyla her noktadan ulaşılabilen öğeler yalnızca tekerlekli mobilyalar değildir. Zira zeminden ısıtma, zeminden kanallar içerisinde ilerleyen elektrik hatları ve tavandaki tavalar içine yerleştirilmiş aydınlatma projesi de ofisin her noktasına farklı kullanım senaryolarına hazır bir şekilde hizmet vermektedir.
Esnek altyapı üzerine gelen ve yine modüler bir sisteme sahip kullanıcı mobilyaları ise temelde farklı boyutlarda yaklaşık iki yüz adet çok amaçlı modül, masa ve sandalyeden ibarettir. Proje sonucunda, yer aldığı lokasyonda ve sektörde farkını hissettiren firma kurumsal kimliği ile tamamen paralel bir ofis binasına kavuşmuş oldu.
Tuzla, İstanbul 170 m² + 70 m²
www.yeo.com.tr
EKİP
Proje Ekibi: Meydan Mimarlık
Şantiye Kontrolü ve Satın Alma: Meydan Mimarlık, Mesut Kılıç (YEO)
Fotoğraflar: Meydan Mimarlık, Emre Dalak
Aydınlatma Tasarımı: Meydan Mimarlık
Elektrik İşleri: Sağlam Elektrik
Zeminden Isıtma: Erdil Teknik Yapı
Şap ve Epoksi İşleri: Göktuğ İnşaat
Kepenk ve Doğrama İşleri: Ovel Otomatik Kapı Sistemleri
Mobilya İşleri: Konak Mobilya, Meydan Mimarlık
Demir İşleri: Davut Doğrama ve Olcay Bulut
Tesisat İşleri: Demirkaya Tesisat
Boya İşleri: Mehmet Aydın ve Ekibi
Seramik İşleri: Mehmet Aydın ve Ekibi
Çevre Düzenlemesi ve Taş Döşeme İşleri: Yılmaz İnşaat
Bitki Tedarikçisi: Öz Mercan Peyzaj ve Çiçekçilik









































You must be logged in to post a comment.