Addis Ababa Konut Projesi

2017, Addis Ababa, Etiyopya – Toplu konut konsept projesi. Etiyopya gelişmekte ülke konumunda olup mevcut zamanda yaşam kalitesi günden güne yükselmektedir. Baraka hayat tarzından apartmanlara taşınma yapıların inşa edilmesiyle hız kazanmıştır.
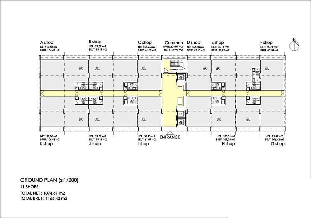
Yapıların yoğun olarak bulunduğu bölgede tasarlanmış bu konsept toplu konut projesinde üç ve dört odalı farklı tiplerde dairelerden yer almaktadır. Zemin katta blok girişleri ve ticari dükkanlar ile çevreyle ilişki kurmaktadır. Bodrum katlarında otoparka sahip yapıda 266 daire bulunmakta, yan cephelerde Addis Ababa’nın ılıman iklimine uygun düşey bahçeler yer almaktadır.
Addıs Ababa, Etiyopya
İnşaat 59.000 m²
Müşteri: Metropol
EKİP
Tasarım : Meydan Mimarlık
İşveren: Metropolitan İnşaat












