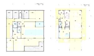
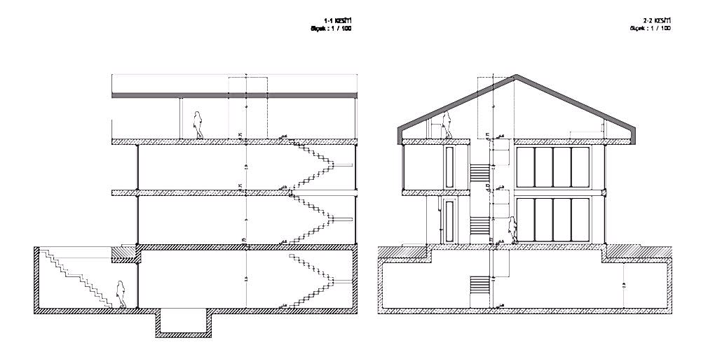
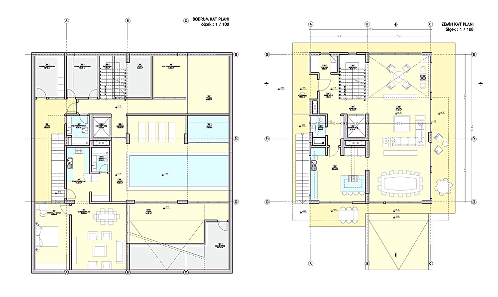
Mercan Villaları


2017, İstanbul – Mercan mahallesinde, dört tane Villa.
Mercan, Tuzla, İstanbul
Arsa: 2350 m², inşaat 2800 m²
Müşteri: Yıldız Ailesi
EKİP
Doruk Karagöz, Jose Manuel García Torres
Ara 3
The survey of the rear façade of the new monastery of Sen Piyer Church, located right next to the Genoese walls in Galata, has been completed. The façade has a close connection with the historic walls, and the openings created for light and ventilation are among its most notable features. This work was prepared to document the building’s current condition and to support future assessments
---
Galata’daki Ceneviz surlarının hemen yanında konumlanan Sen Piyer Kilisesi’nin yeni manastırının arka cephesi için hazırlanan rölöve çalışması tamamlandı. Üzerinde çalışılan cephe, tarihi sur duvarı ile yakın bir ilişki kuruyor. Işık ve havalandırma için bırakılan açıklıklar ise bu ilişkinin en dikkat çekici detayları arasında. Bu çalışma, yapının mevcut durumunun anlaşılması ve sonraki değerlendirmelere temel oluşturması amacıyla hazırlanmıştır.
---
#galatawalls #senpiyerkilisesi #survey #heritage #drawing ...
Ağu 18
Project for a new generation Caravanserai.
2025. (Work in progress)
New roof for the conservation of rural architecture/ D block.
Wood + Policarbonate.
Thanks too @guztecpolymers for their unconditional support.
Foto:@tugcearslan_ ...
Tem 22
Restoration works for Madeleine Apartment in Galata almost finish!!
İstanbul, 2025
#restoration #heritage #crafts #architecture #history #istanbul #galata #plans #photogrametry #restorasyon #miras #mimarlik #tarih #adaptivereuse #horasanharcı #renovation ...
May 6
Posthane Villa 🏡
Interior Design
Tuzla (Turkiye)
.
.
.
📸:@krgz_drk
#architect #architecture #design #interiordesign #architecturelovers #architecturephotography #archilovers #construction #interior #archdaily #arquitectura #art #architecturedesign #home #designer #designers #contemporary #modern #concept #architettura #interiordesigners #mimarlik #içmimarlik #villa #mimaritasarım #mimar #meydanarchitecture #furniture ...
May 3
Karabayır House 🏡
Landscape Works
Eskişehir (Turkiye)
.
.
.
📸:@krgz_drk
#architect #architecture #design #interiordesign #architecturelovers #architecturephotography #archilovers #construction #landscape #interior #archdaily #arquitectura #art #architecturedesign #home #designer #designers #contemporary #modern #concept #architettura #interiordesigners #mimarlik #içmimarlik #villa #mimaritasarım #peyzaj #peyzajmimarligi #mimar #meydanarchitecture ...
May 2
Karabayır House 🏡
Interior Finishing Process
Eskişehir (Turkiye)
.
.
.
📸:@krgz_drk
#architect #architecture #design #interiordesign #architecturelovers #architecturephotography #archilovers #construction #interior #archdaily #arquitectura #art #architecturedesign #home #designer #designers #contemporary #modern #concept #architettura #interiordesigners #mimarlik #içmimarlik #villa #mimaritasarım #mimar #meydanarchitecture #furniture ...
Nis 17
Survey works for Madeleine Apartment in Galata
İstanbul, 2025
#restoration #heritage #survey #architecture #history #istanbul #galata #drawing #plans #elevation #sections #photogrametry #restorasyon #miras #rölöve #mimarlik #tarih #çizimler ...
Ara 23
Karabayır House 🏡
Construction Site Visit
Eskişehir (Turkiye)
.
.
.
📸:@krgz_drk
#architect #architecture #design #interiordesign #architecturelovers #architecturephotography #archilovers #construction #interior #archdaily #arquitectura #art #architecturedesign #home #designer #designers #contemporary #modern #concept #architettura #interiordesigners #mimarlik #içmimarlik #villa #mimaritasarım #mimar #meydanarchitecture ...
Kas 9
Karabayır House 🏡
Construction Process...
Eskişehir (Turkiye)
.
.
.
.
#architect #architecture #design #interiordesign #architecturelovers #architecturephotography #archilovers #construction #interior #archdaily #arquitectura #art #architecturedesign #home #designer #designers #contemporary #modern #concept #architettura #interiordesigners #mimarlik #içmimarlik #villa #mimaritasarım #mimar #meydanarchitecture ...
Eki 23
”Recyclable Modular Timber Stand”
For @kraftambalaj
Avrasya Ambalaj 2024 Fuar
Packaging Trader Fair of Istanbul
#recyclable #geridonusum #design #stand #tradefair #tasarım #fuar #carpentry #marangoz #timber #wood #ahşap #collaboration #craft #artsandcrafts #architecture #mimarlik #handmade #makers ...
Eyl 30
Sen Piyer Apartment, Flat Restoration.
Istanbul, 2024
Conservation of the original walls, doors and floors around the new kitchen.
.
.
.
#architecture #mimarlik
#restoration #restorasyon #design #tasarim #interiorarchitecture #içmimarlik #heritage #miras #istanbul #galatatower #galatakulesi #flat #apartman #history #tarih #home #ev #reuse #renovation #tadilat #inspiration #regeneration ...
Haz 16
Little dreams come true...
#balcony #design #architecture #plywood #carpentry #table #landscape #photography #architecturedesign #furniture #sun #custom ...
Haz 13
Karabayır House 🏡
Construction Process almost finish....
Eskişehir (Turkiye)
.
.
.
.
#architect #architecture #design #interiordesign #architecturelovers #architecturephotography #archilovers #construction #interior #archdaily #arquitectura #art #architecturedesign #home #designer #designers #contemporary #modern #concept #architettura #interiordesigners #mimarlik #içmimarlik #villa #mimaritasarım #mimar #meydanarchitecture ...
Haz 9
Meydan reunion with former founder Hakan Sakarya.... Great to be together again, as 15 years ago 🙏🙏🙏
#meydan #architecture #design #mimarlik #tasarım #adventure #istanbul ...
May 16
Some wood works in Samatya`s Project...
Restoration + Architecture + Design ...
Oca 12
"Mercan Villa" Refurbishing almost Finished.
2023
#architecturedesign #architecture #design #construction #villa #mimarlik #tasarim #roof #finishing #interiordesign #home #trees #blackandwhite #refurbishment # ...
Ara 26
New Survey Approved
Historic House in Unkapanı (Fatih)
2023. İstanbul
.
.
.
.
.
.
.
.
.
#restoration #conservation #heritage #survey #project #drawings #history #rum #houses #residencial #konut #restorasyon #koruma #rölöve #tarih #proje #samatya #brick #istanbul #miras #fatih #cumba #tarih #mimarlik #architecture #unesco #unescoworldheritage ...
Ara 22
Moda Studio Project,2023
.
.
.
.
.
.
.
.
.
.
#architect #architecture #design #interiordesign #architecturelovers #archilovers #construction #interior #archdaily #art #homedecor #interiors #interiordesigner #architecturedesign #home #designer #interiordesigners #homedesign #archimodel #bedroom #mimarlik #içmimarlik #konsepttasarım #mimaritasarım #dekorasyon #mimar #istanbul #turkey #konutprojesi #meydanmimarlik ...
Eki 20
Karabayır House 🏡
Construction Process....
Eskişehir (Turkiye)
.
.
.
.
#architect #architecture #design #interiordesign #architecturelovers #architecturephotography #archilovers #construction #interior #archdaily #arquitectura #art #architecturedesign #home #designer #designers #contemporary #modern #concept #architettura #interiordesigners #mimarlik #içmimarlik #villa #mimaritasarım #mimar #meydanarchitecture ...
Eki 13
1st floor of the 2nd home almost ready....
Eco Farm, Rural Houses Project
- Seferihisar, İzmir
.
.
.
.
#architect #architecture #design #architecturelovers #architecturephotography #archilovers #construction #interior #arquitectura #taş #masonry #architecturedesign #home #designer #designers #landscape #peysaj #mimarlik #içmimarlik #ruralhouse #mimar #ecofarm #farmhouse #tasevler #meydanmimarlik #stone
Video:@obenfistikoglu ...
Eki 12
Some Stone Landscape Works....
Eco Farm, Rural Houses Project
- Seferihisar, İzmir
.
.
.
.
#architect #architecture #design #architecturelovers #architecturephotography #archilovers #construction #interior #arquitectura #taş #masonry #architecturedesign #home #designer #designers #landscape #peysaj #mimarlik #içmimarlik #ruralhouse #mimar #ecofarm #farmhouse #tasevler #meydanmimarlik #stone
Photo:@warmgrey ...
Eyl 1
New Project in Istanbul: Reap Battery Factory. Construction just started👌👍 #factory #industry #battery #electricity #architecture #design #solarenergy #solarpanels #greenenergy #mimarlik #tasarım #fabrika #sanayi #güneşenerjisi #yeşilenerji ...
Tem 6
Caravanserai Summer School 2023 is coming, stay tuned for details.... #restoration #ecology #sustainable #collaboration #rural #architecture #vernacular #pergamon #architecturalevent #summerschool #education #workshop #architectureworkshop #naturalarchitecture ...
Haz 15
New High Speed Rail Station in Lorca, Murcia (Spain). 2023
.
.
.
We are so proud of collaborate with the visualizations of this project, designed by SAITEC and Ecoproyecta and promoted by the Minister of Transportation of Spain and Adif.
#architecture #design #interiordesign #transportation #rendering #train #station #speed #railway #highspeedrail #visualization #internationalcollaboration #facade #skylight #city ...
May 18
Work in progress...flooring and windows ready
Eco Farm, Rural Houses Project
- Seferihisar, İzmir / 2023
.
.
.
.
#architect #architecture #design #interiordesign #architecturelovers #architecturephotography #archilovers #construction #interior #archdaily #arquitectura #art #architecturedesign #home #designer #designers #architettura #interiordesigners #bedroomdecor #mimarlik #içmimarlik #ruralhouse #mimaritasarım #mimar #ecofarm #farmhouse #tasevler #meydanmimarlik ...
Ahmediye Mah. Necmettin Okyay Sk. No:23/A Üsküdar İstanbul Türkiye | E: [email protected] | T: +90 216 342 22 22

















