Eliptik Villa

2017, Mercan (Tuzla) İstanbul – Eliptik Villa
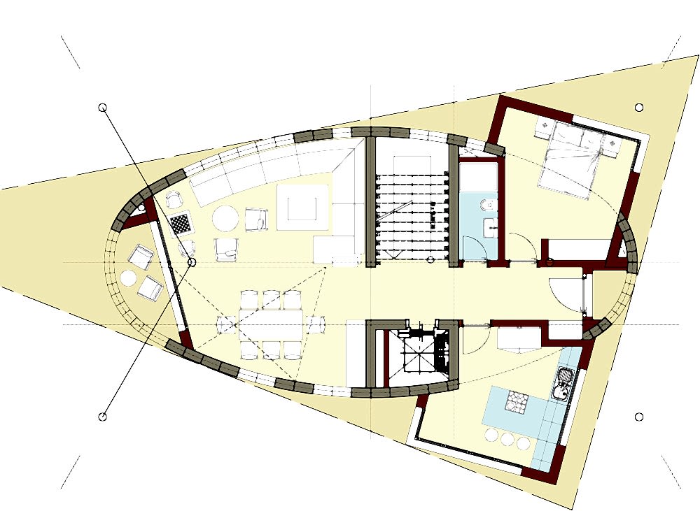
Mercan Mahallesi’nde çamlıklar arasında bağ ve yazlık deneysel villa çalışması. Belirli prensipler ve modülerlikte elips forma sahip kütleye saplanan dikdörtgen plan şemalı kütlenin birlikte çalışmasıyla ortaya çıkan villa tasarımı.
Mercan, Tuzla, İstanbul
Arsa: 451 m², inşaat 430 m²
Müşteri: Yıldız Ailesi
EKİP
Tasarım: Doruk Karagöz, Jose Manuel García Torres
İşveren: Yılmaz İnşaat














