Özel Sifa Yıldız Okulu

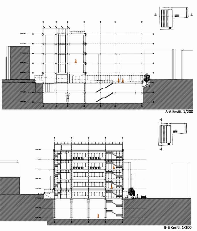
2017, Şifa Mahallesi, İstanbul – Kamusal, Eğitim Binası. Şifa Mahallesi’nde 1270 m² alan üzerinde konumlanmış anaokulu, ilköğretim ve lise öğrencileri için 24’er kişilik toplam 17 adet sınıfı barındıran 408 öğrenci kapasiteli özel okul tasarımı.
Öğrencilerin ders saatleri dışında da çalışabilecekleri, eğitim alabilecekleri, sosyal aktivitelerini de yapabilecekleri; etüt çalışma odaları, kütüphane, kantin – yemekhane, müzik – sanat odaları, bodrum katta kapalı spor salonu, konferans salonu ve arazinin açık alanları da oyun bahçesi olarak tasarlanmıştır.
Şifa Mahallesi, Tuzla) – İstanbul
Alan: 5100 m²
www.yeo.com.tr
Tasarım: Meydan Mimarlık
Eğitimcilerden Teknik Destek: Gülnaz Taloğlu, Alvaro Garcia Torres
İşveren: YEO













