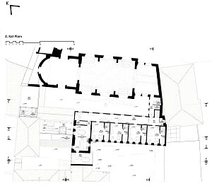
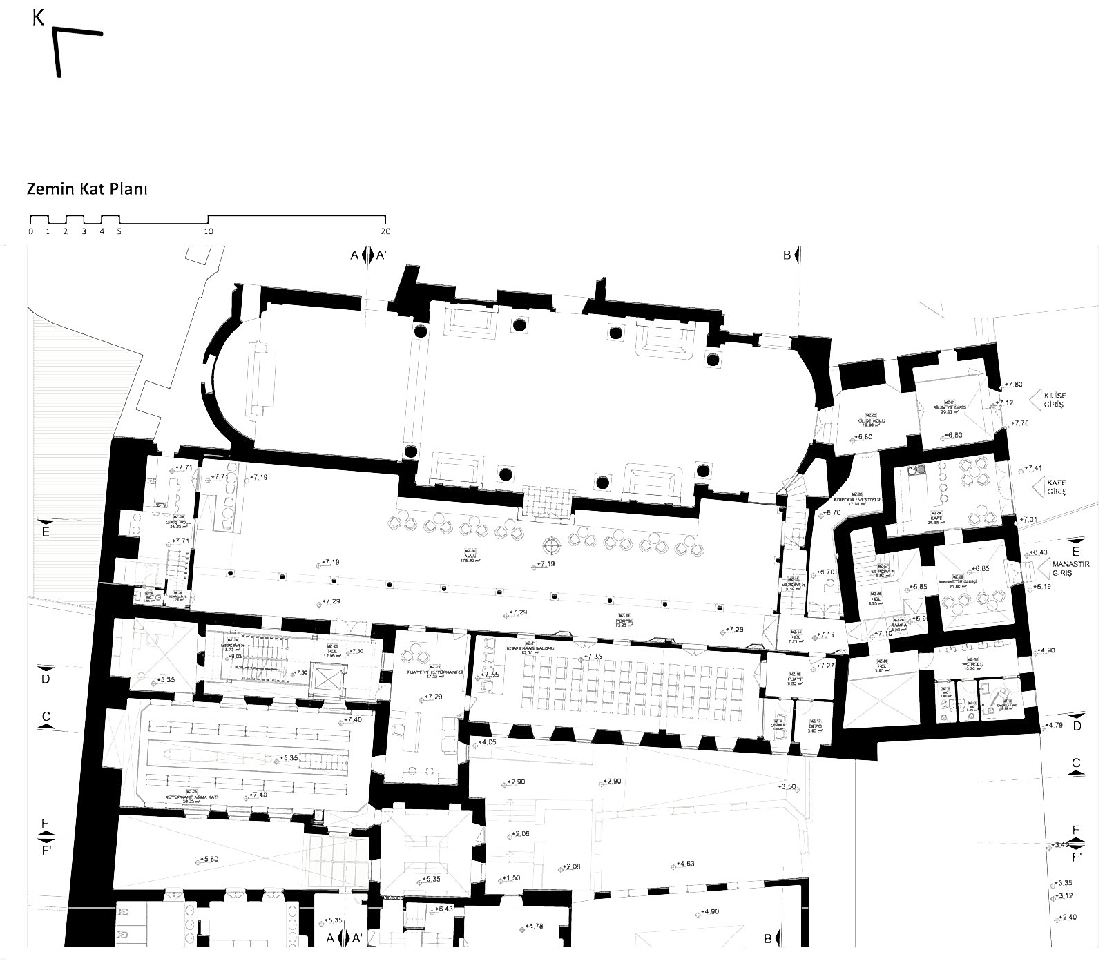
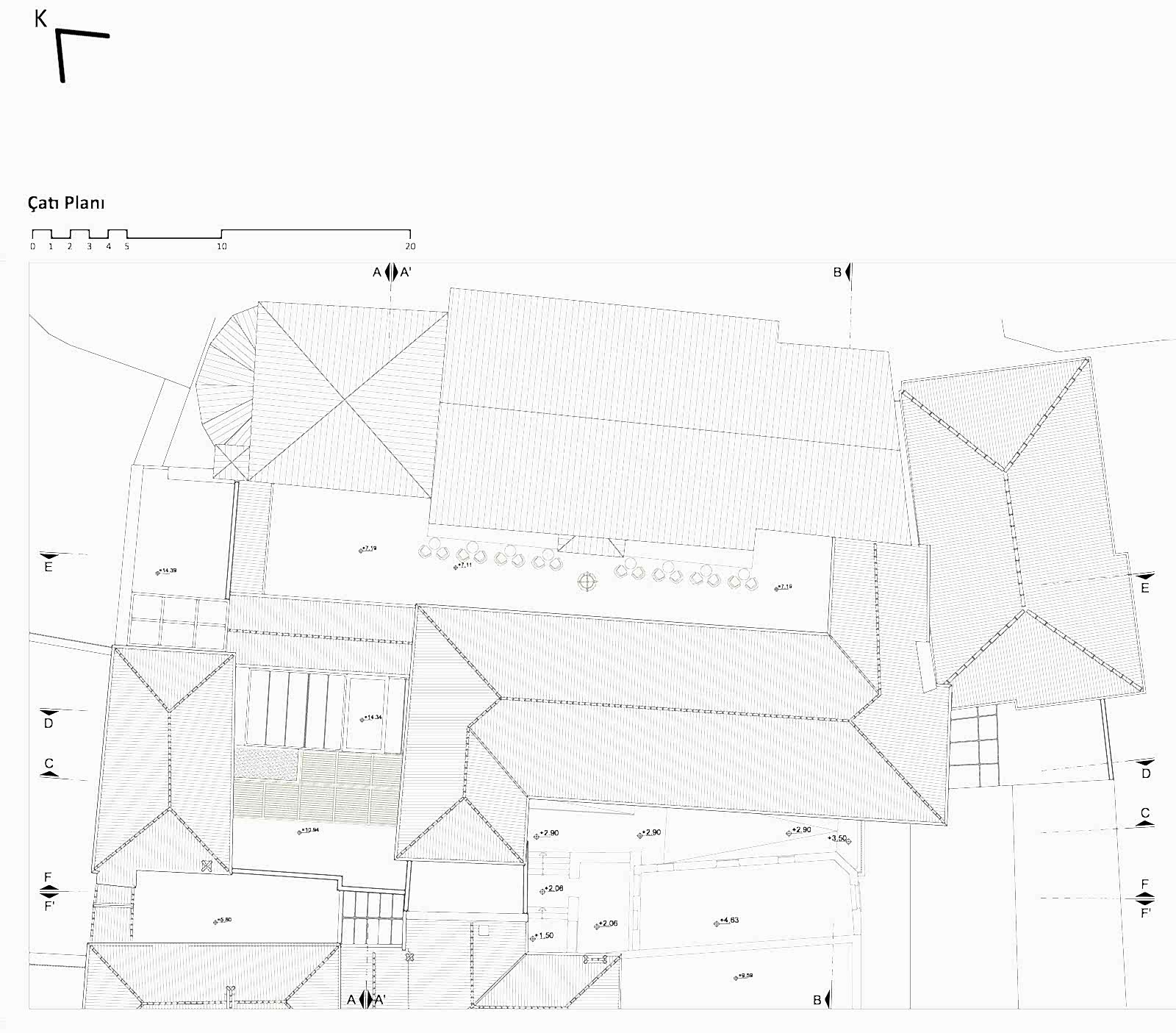
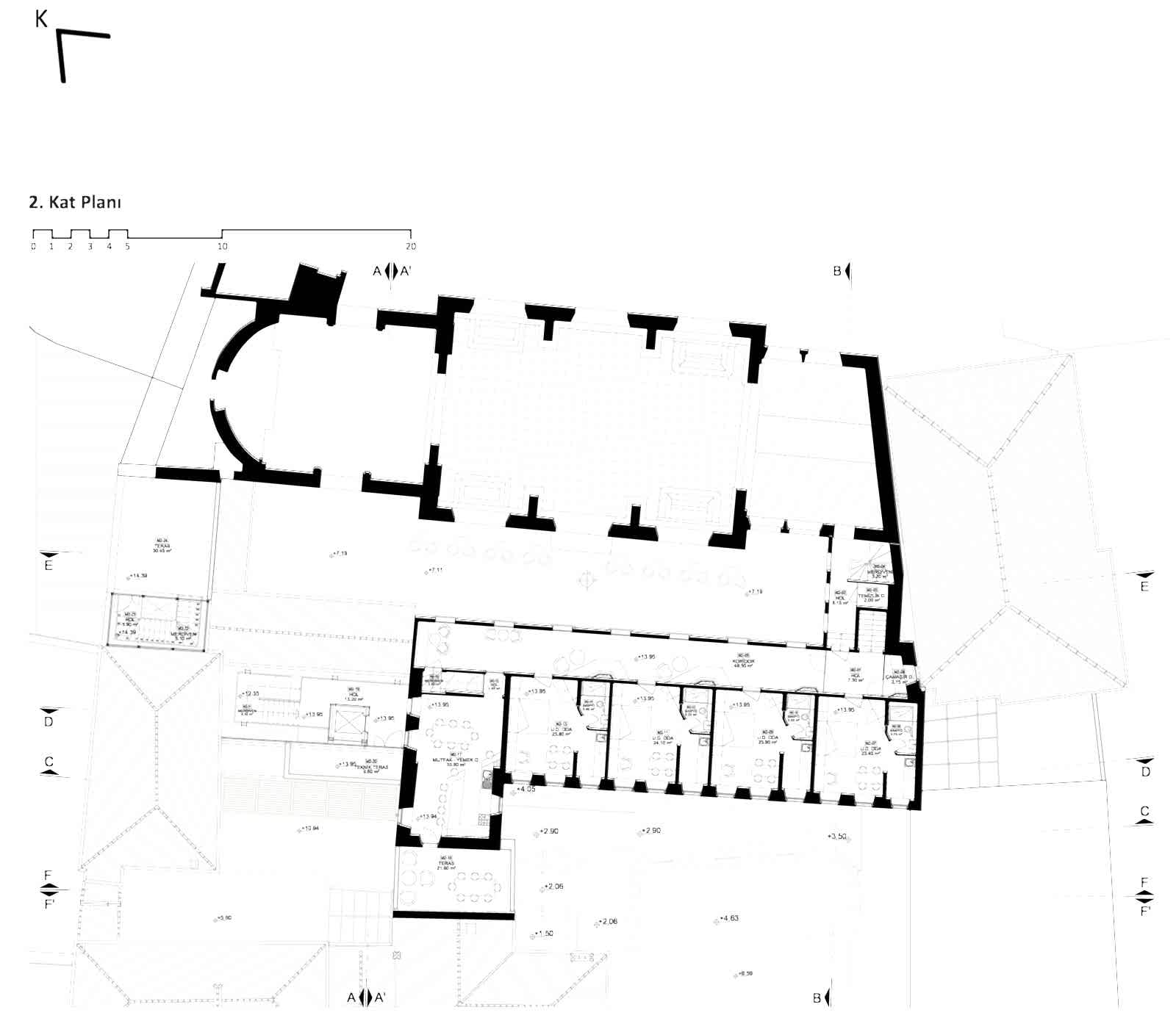
Sen Piyer Manastırı

2021, Beyoğlu, İstanbul –
İlham veren tarihiyle manastırı yenilemek, sorumluluklarla dolu zorlu bir görev olmuştur. Bu bağlamda binanın yapısını bozmadan, sanatsal değerinin yanı sıra tarihi değerinin de sergilenmesi amaçlanmaktadır. Yenilendikten sonra kültür merkezi olarak kullanılacak olan yapının, geçmişteki işlevlerinin bir kısmının tekrar kazandırılması amaçlanarak tasarlandı. Yeni işlevler arasında kısa ve uzun süreli misafirhane, kafe ve araştırma merkezi ile 50.000 kitaplık bir kütüphane de yer alacak.
EKİP
Proje ekibi: Jose Manuel García Torres, Doruk Karagöz, İkbal Sude Soydaş, Teoman Güney, Süleyman Yıldırım, Javier Bolivar, Maher Nureddin, Ali Furkan Gökçe, Gizem Nur Erbaş, Tuğba Saygılı
Brüt Proje Alanı: 2055.00 m2
Müşteri: Dominikan Rahipleri

























