YEO Merkez Ofis

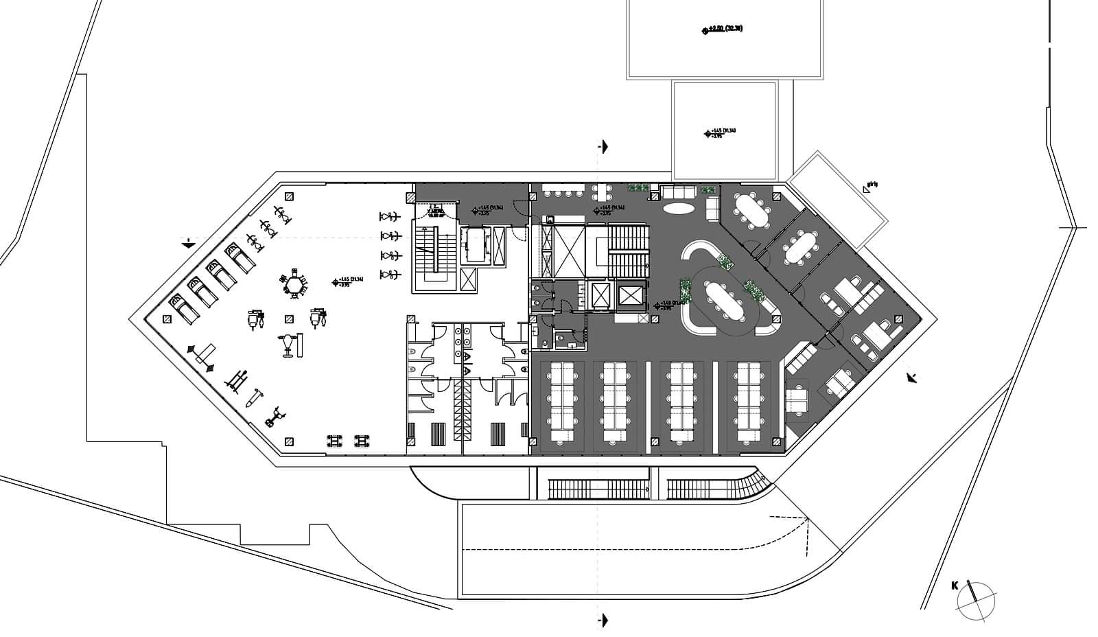
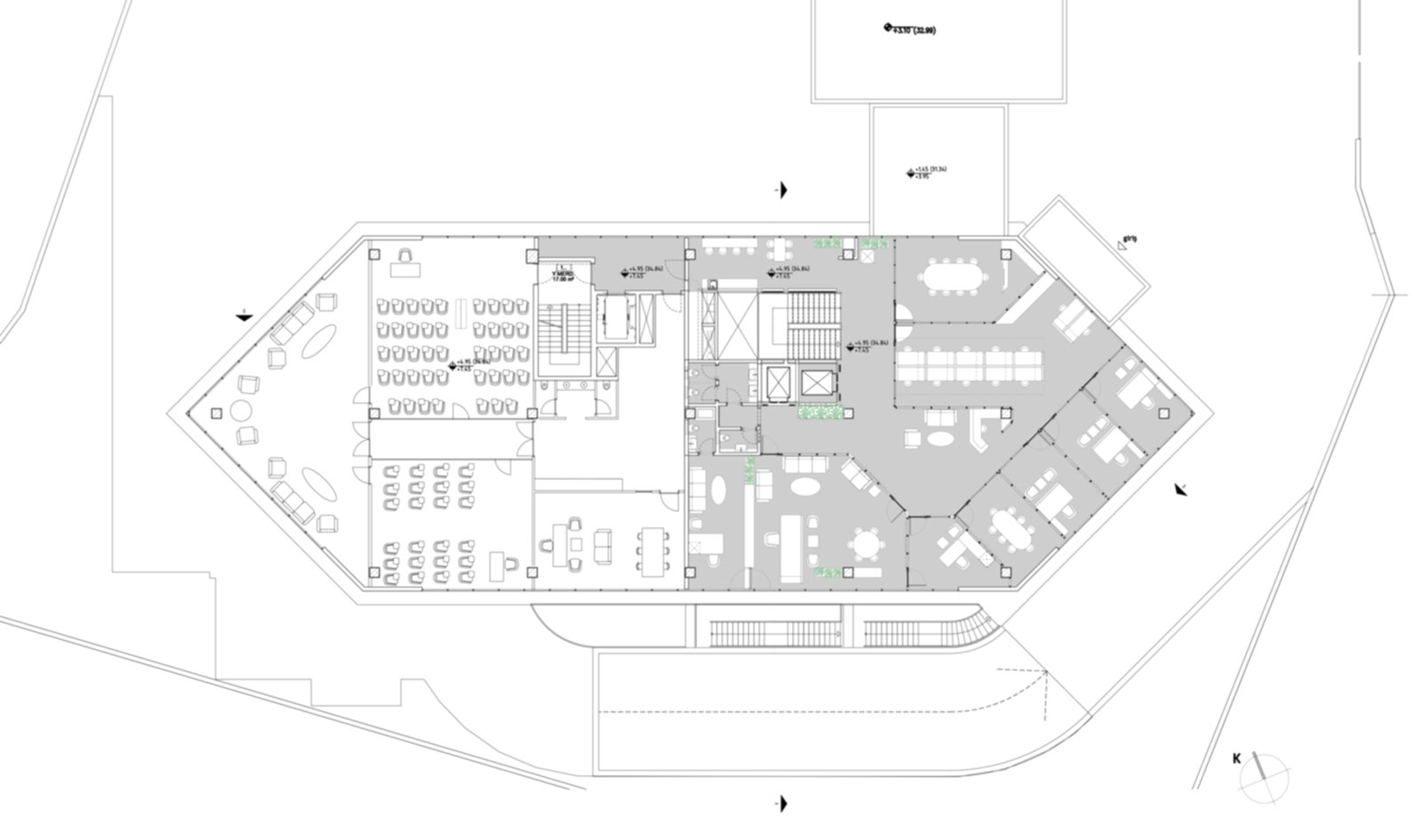
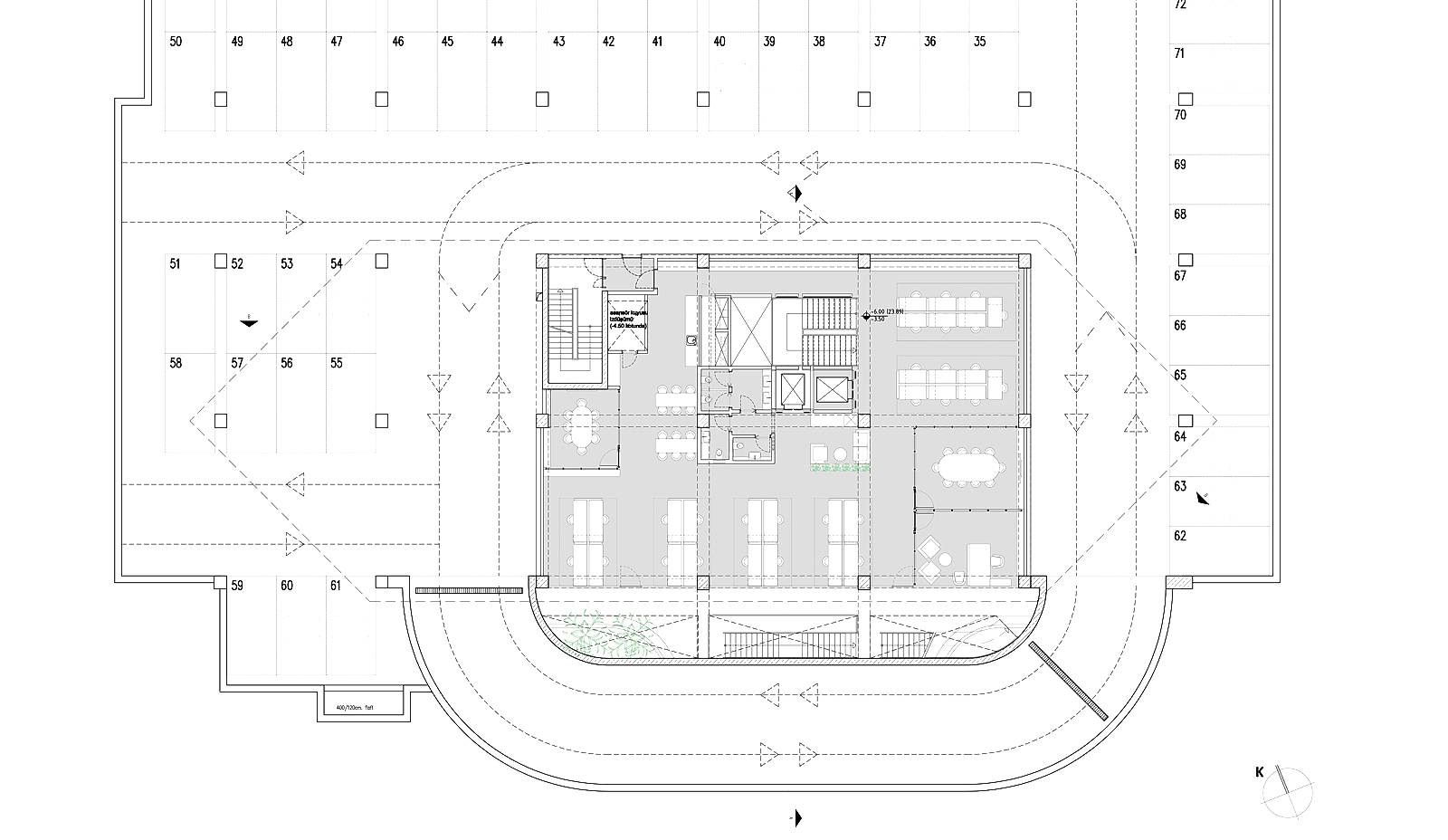
2021, Kartal – İstanbul’da bulunan altı katlı yapının ofis olarak dönüştürülme projesi. Yapının eski halinde düşey sirkülasyonun sürekli olmadığı gibi yeni fonksiyonlara göre düşey sirkülasyon çelik konstrüksiyon çekirdek oluşturularak tüm katlara ulaşım hattı oluşturulmuştur. Katlarda ortak çalışma alanları, toplantı odaları ve yönetici odalarının yanı sıra ortak sosyal alanlar ve ıslak hacimler çözümlenmiştir. Çatı katında yemekhane ve ortak açık alanlar oluşturularak nefes alma mekanları oluşturulmuş benzeraçık terasla bodrum katlarda da zeminde yırtıklar oluşturularak sağlanmıştır.
Kartal, İstanbul
EKİP
Proje ekibi: Doruk Karagöz, Jose Manuel García Torres, Sude Soydaş, Teoman Güney ve Maher Noureddin
Müşteri: YEO
























